Montepulcano Stazione villetta a schiera in vendita Res553
A MONTEPULCIANO STAZIONE (SI), IN VENDITA UNA VILLETTA A SCHIERA DI TIPO TERRA-TETTO, DI RECENTE REALIZZAZIONE.
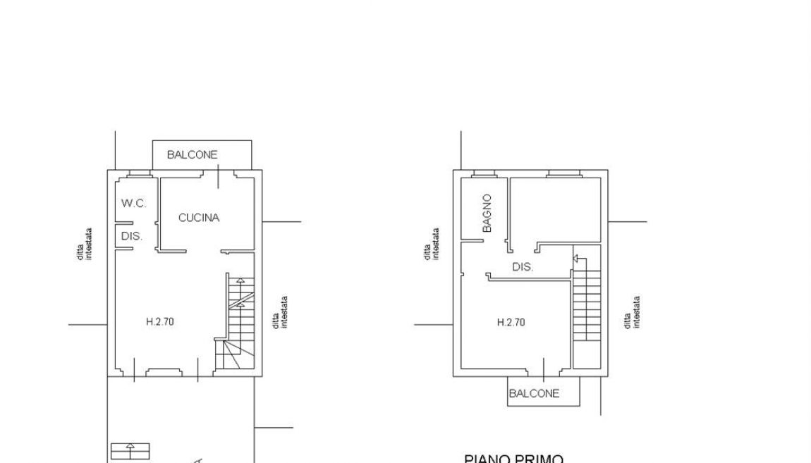
L'ABITAZIONE È ARTICOLATA SU 3 LIVELLI DI PARI SUPERFICIE COMUNICANTI MEDIANTE SCALE INTERNE, PER UN TOTALE DI 120m2. IL PIANO TERRA RIALZATO, MOLTO LUMINOSO, PRESENTA ALL'INGRESSO UNA ZONA LIVING CARINA E FUNZIONALE, CON VISTA E ACCESSO AL GIARDINO PRIVATO, UN'AMPIA CUCINA CON BALCONE, E UN BAGNO PRECEDUTO DA UN DISIMPEGNO. IL PRIMO PIANO È COMPOSTO DA UNA CAMERA MATRIMONIALE CON BALCONE, UNA CAMERA SINGOLA, UN BAGNO, E UN COMODO SOPPALCO UTILIZZABILE COME RIPOSTIGLIO. IL PIANO SEMINTERRATO È COMPOSTO DAL GARAGE E DALLA LAVANDERIA. COMPLETANO IL TUTTO UN TERRENO PRIVATO DI CIRCA 45m2 COMPOSTO DALL'INGRESSO ALL'ABITAZIONE E DA UN GIARDINO (CON FONTANELLA), E UN POSTO AUTO ESTERNO.L'ABITAZIONE SI PRESENTA MOLTO CURATA NEI DETTAGLI E NELLE RIFINITURE, COSÌ DA CREARE UN'ATMOSFERA CONFORTEVOLE, DAL TOCCO MODERNO. LA SUA POSIZIONE RISULTA TRANQUILLA E SILENZIOSA, MA ALLO STESSO TEMPO VICINA (POCHE CENTINAIA DI METRI) AI SERVIZI OFFERTI DAL PAESE (QUALI NEGOZI DI GENERI ALIMENTARI, CENTRI SPORTIVI, UFFICIO POSTALE, BANCHE, SCUOLE, STAZIONE FERROVIARIA, BAR, ECC.).
LA CASA È PRONTA PER ESSERE SUBITO ABITATA, E DISPONE DI UTENZE (GAS, LUCE, ACQUA) AUTONOME.
LO STATO DELLA VILLETTA (E DELL'ARREDAMENTO PRESENTE) RISULTA PARI AL NUOVO.
La mobilia presente nella casa ha avuto il costo di euro 20300,00 precovid. La proprietà propone una cifra di euro 6000,00 per la stessa.

Appartamenti

80 Mq.

0 Mq.

2

Montepulciano
